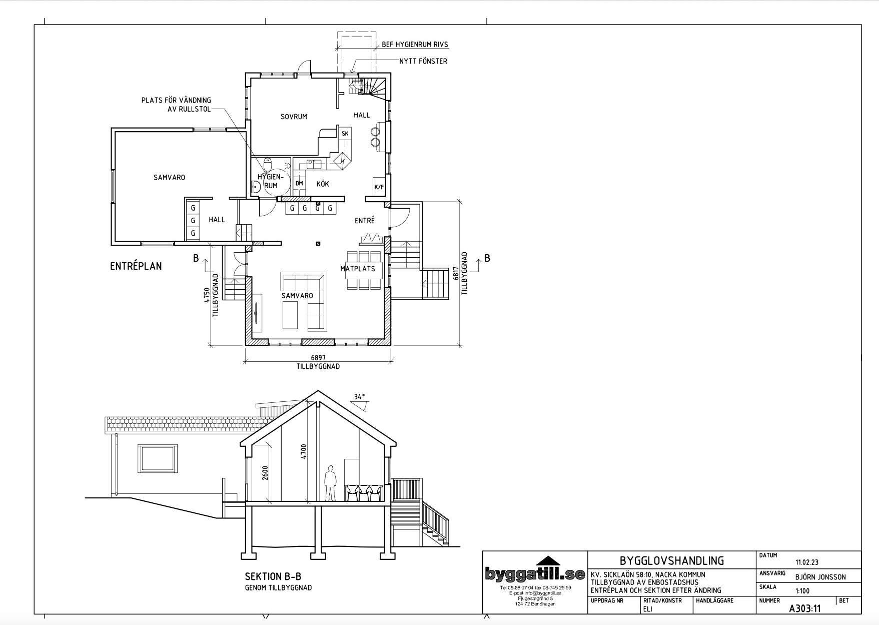
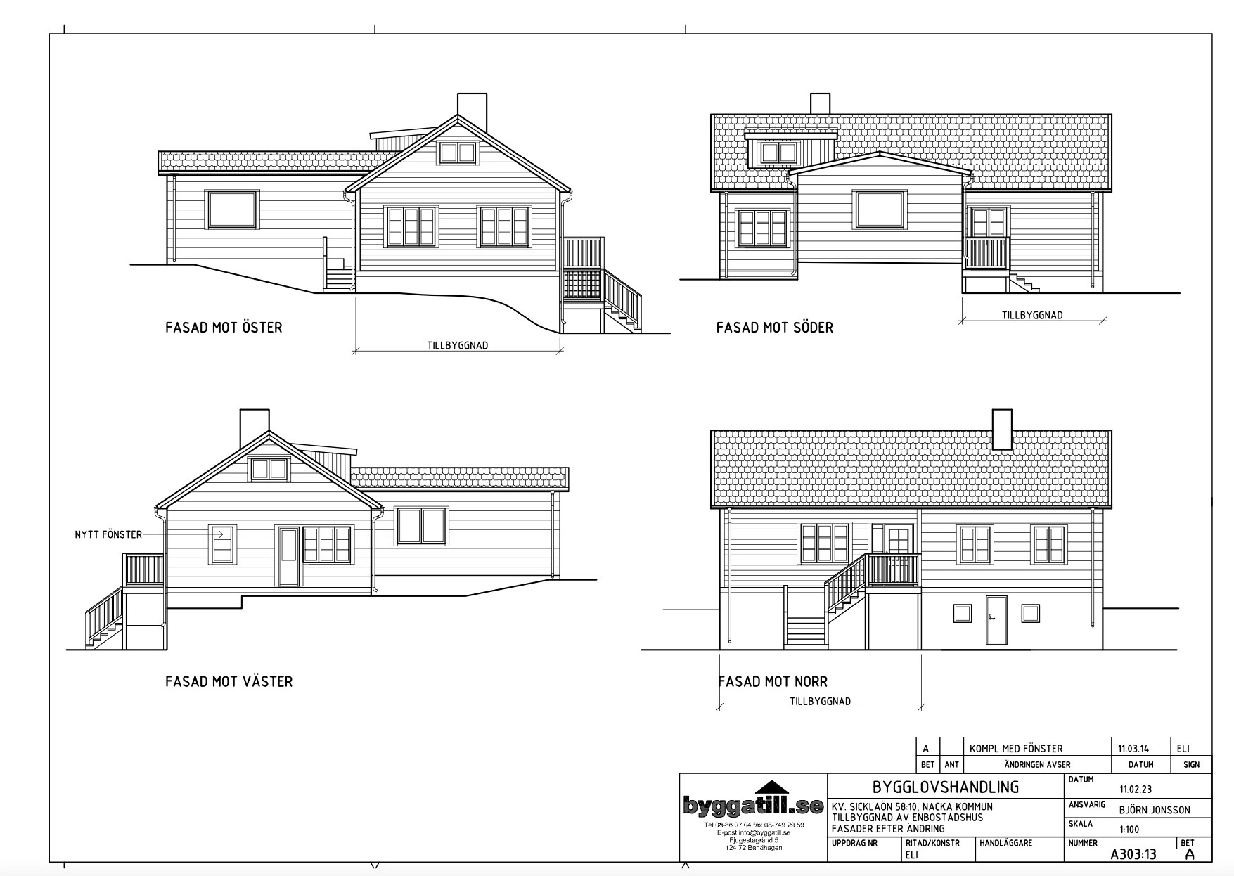
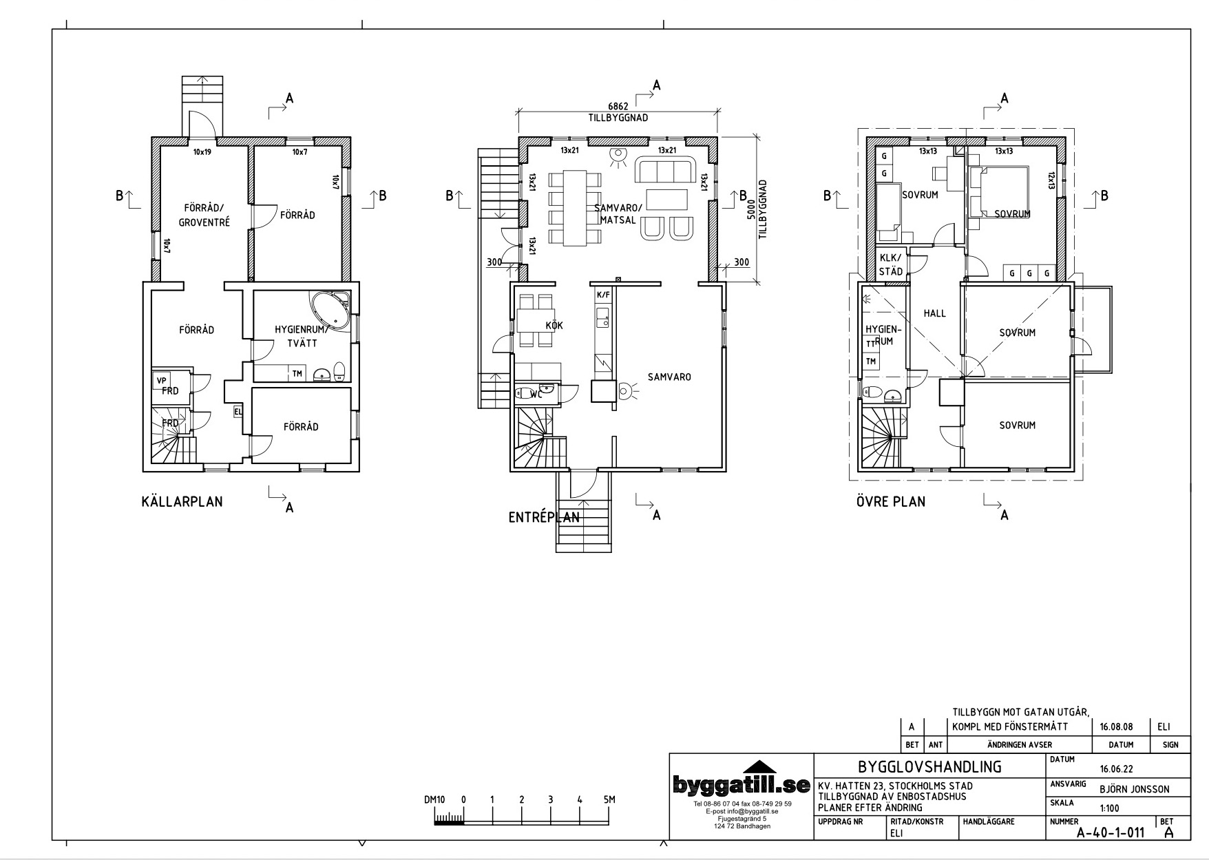
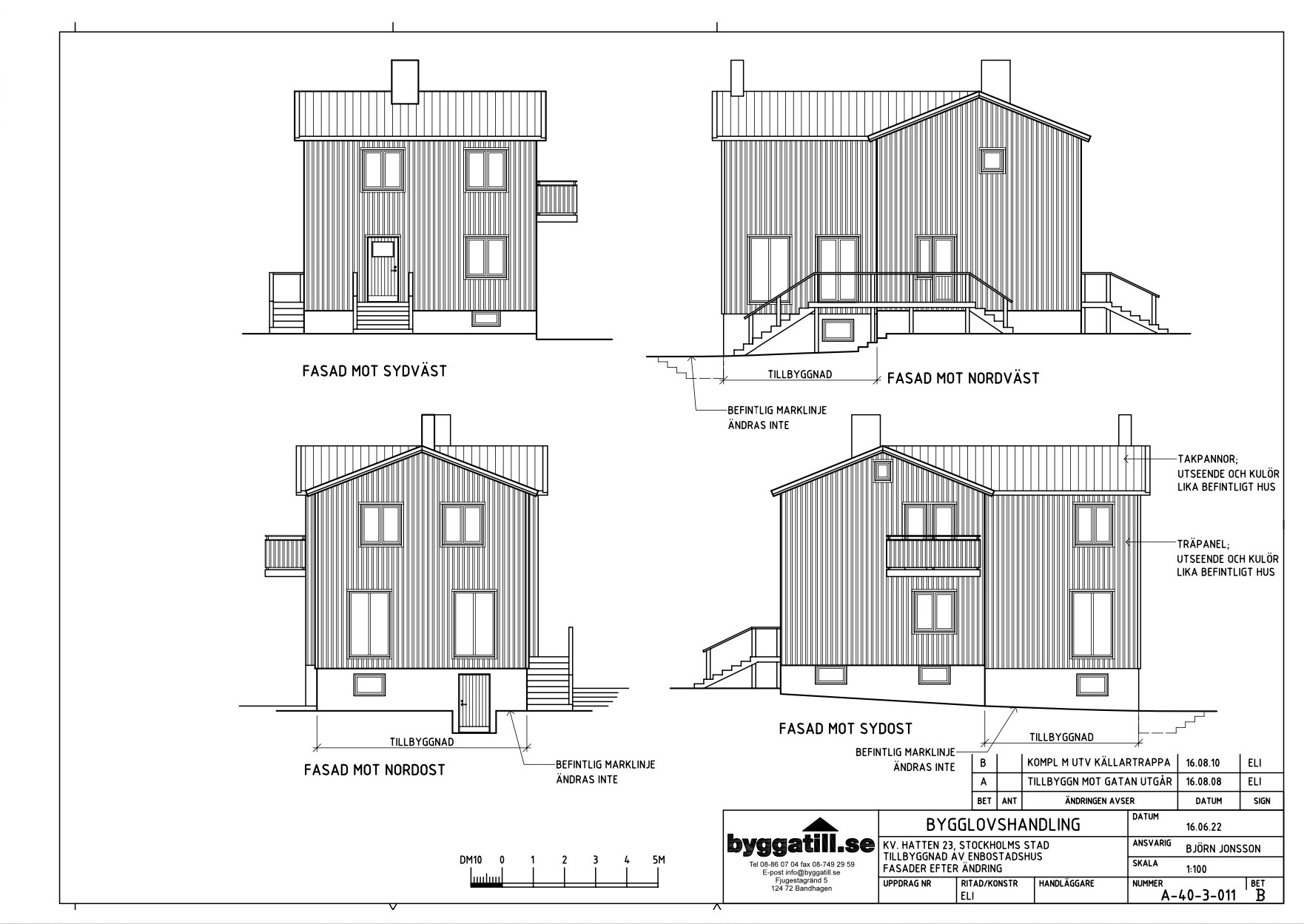
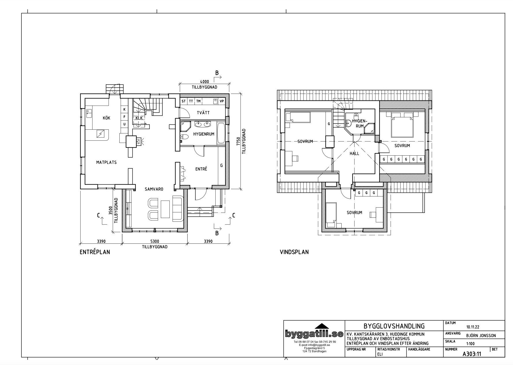
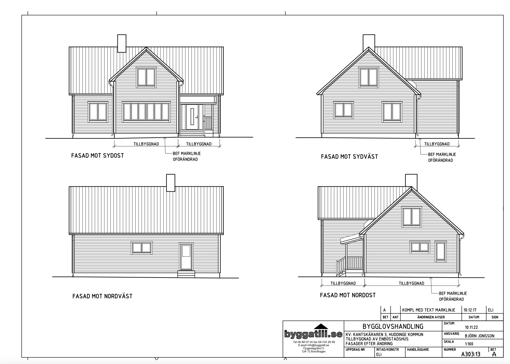
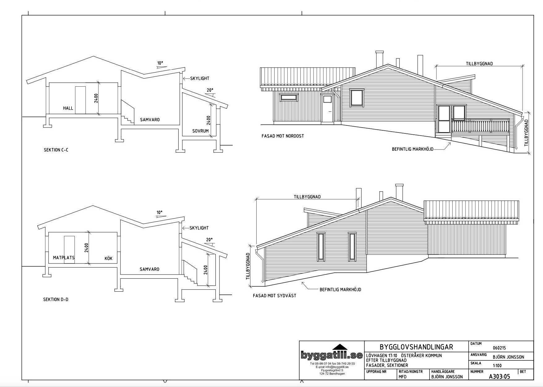
Tillbyggnad på Värmdö
Tillbyggnaden färdigställdes invändigt och utvändigt under vintern 21/22.







Tillbyggnaden färdigställdes invändigt och utvändigt under vintern 21/22.







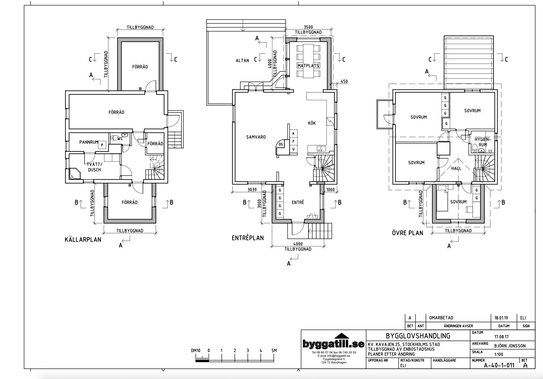
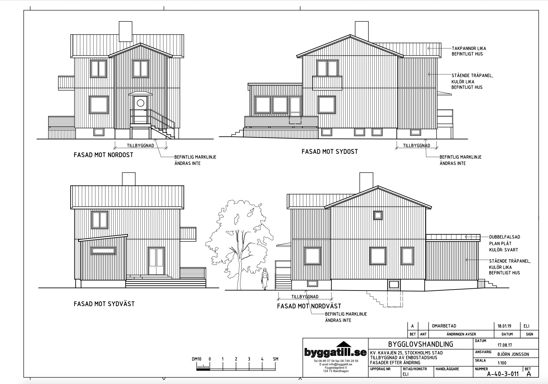
Tillbyggnaden färdigställdes invändigt och utvändigt under våren 2019.





Tillbyggnaden färdigställdes invändigt och utvändigt under våren 2012.






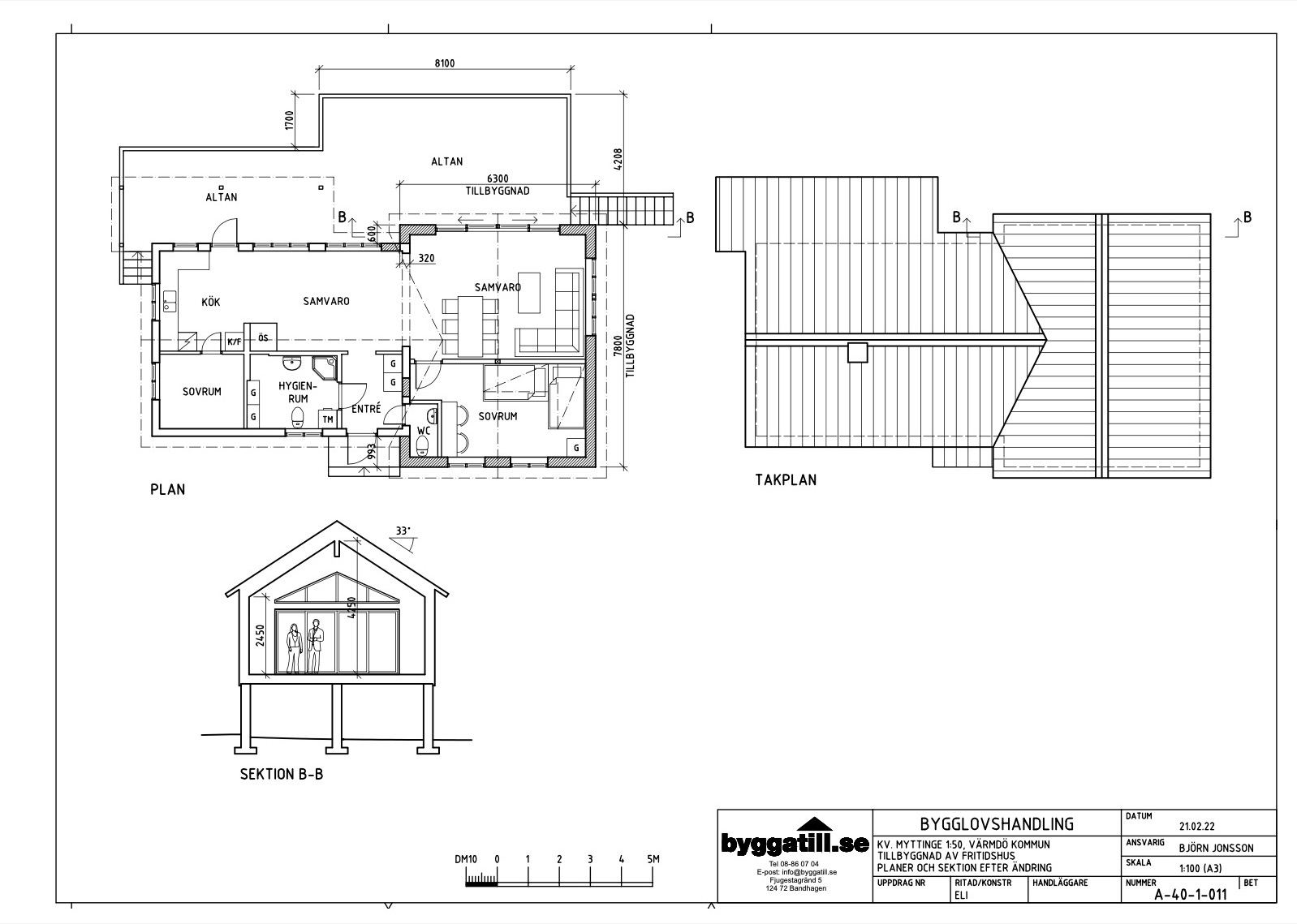
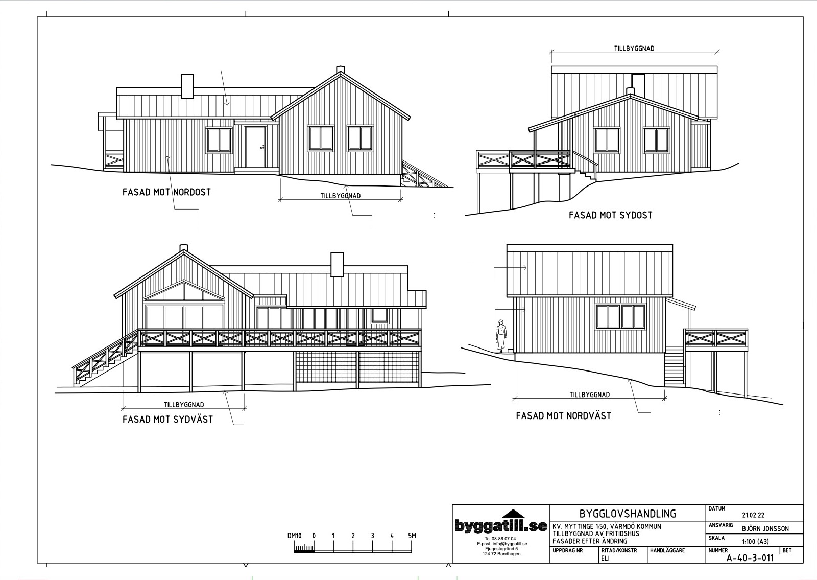
Tillbyggnaden färdigställdes av kunden själv både invändigt och utvändigt under vintern 2021.






Tillbyggnaden färdigställdes invändigt och utvändigt under hösten 2018.



Tillbyggnaden färdigställdes invändigt och utvändigt under vintern/våren 2012.






Tillbyggnaden färdigställdes utvändigt och invändigt under vintern 2019.




Tillbyggnaden färdigställdes utvändigt och invändigt under vintern 2019.



Tillbyggnaden färdigställdes utvändigt av kunden själv och invändigt under vintern 2006.

















Juni 2021
Tillbyggnad monterades på en villa i Farsta.
Villan växte med 23 kvm på 5 timmar!

April 2021
Tillbyggnad monterades på en villa i Bromma.
Huset växte med 30 kvm på 6 timmar!

April 2021
Tillbyggnad monterades på en villa i Enskede.
Villan växte med 30 kvm på 7 timmar!

Mars 2021
Tillbyggnad monterades på en villa i Trångsund.
Villan växte med 70 kvm på 8 timmar!

December 2020
Tillbyggnad monterades på en villa i Trångsund.
Villan växte med 101 kvm på 8 timmar!

Oktober 2020
Tillbyggnad monterades på en villa i Åkersberga.
Villan växte med 110 kvm på 8 timmar!

September 2020
Tillbyggnad monterades på en villa i Täby.
Villan växte med 53 kvm på 7 timmar!

Juni 2020
Tillbyggnad monterades på en villa i Åkersberga.
Villan växte med 115 kvm på 7 timmar!

Maj 2020
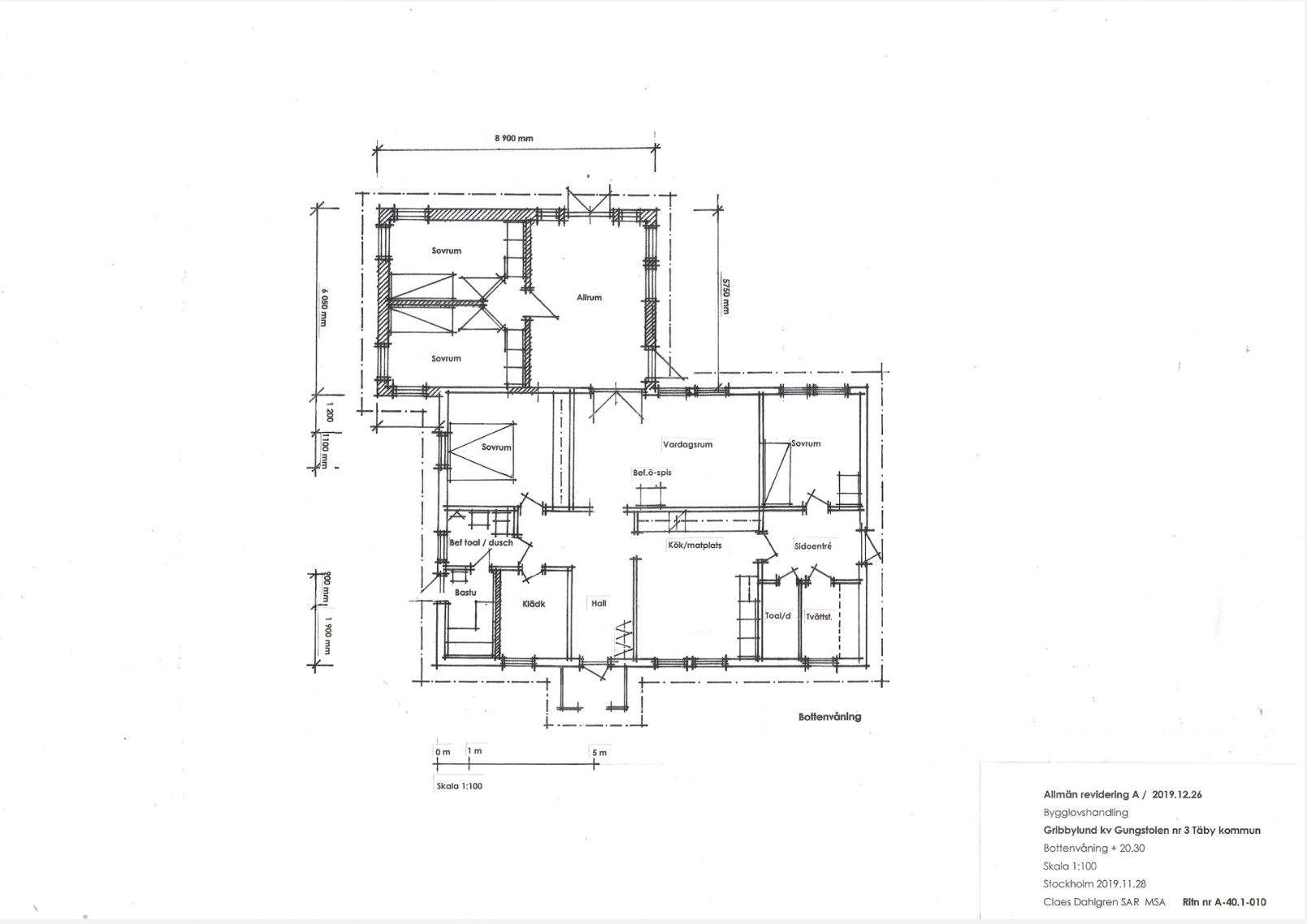
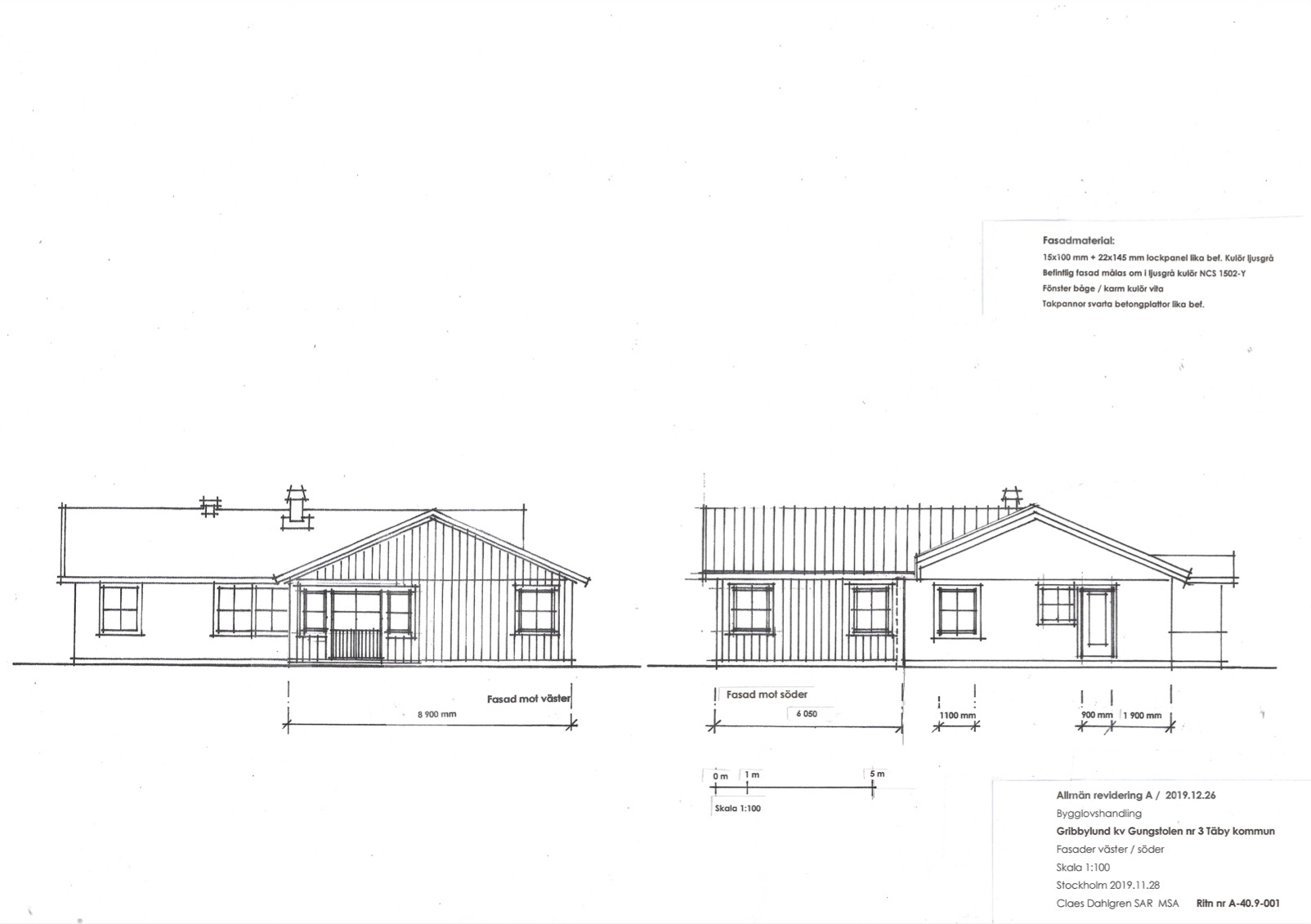
Tillbyggnad monterades på en villa i Täby.
Villan växte med 60 kvm på 7 timmar!
